Camion escenario

CARACTERÍSTICAS TÉCNICAS
Los escenarios móviles están equipados con apertura hidráulica de gran calidad certificadas para grandes cargas según las más estrictas normativas de seguridad europea.

Camión XXL

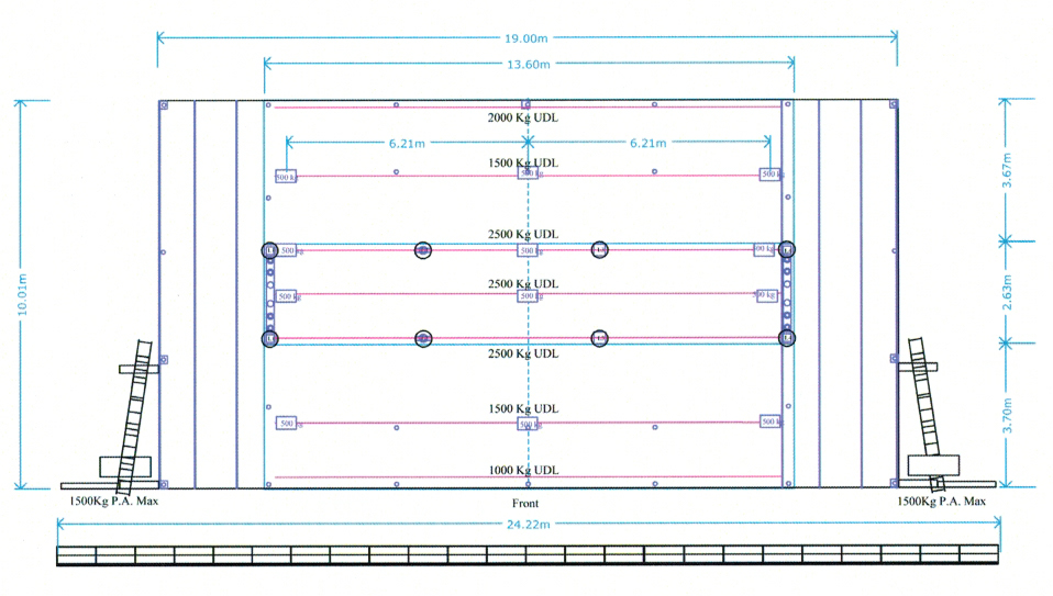
- Planta escenario: 19x10 metros
- Altura suelo a plancha: de 1,20 a 2 metros.
- Altura plancha a techo: de 2,40 a 10,5 metros
- Carga soportada total: 12.000 kg
- Carga puntual en soportes para P.A.: 1.000 kg sin pata accesorio 2.500 kg con accesorio
- Velocidad máxima de viento soportada: 80 km/h
- Acceso a rampa y escalera
- Bodega
- Capacidad de carga extra interior = 40 metros cúbicos
        Tiempo de montaje = 3horas
        Operarios necesarios = 2 pax.
        Generador autónomo para apertura incluido.


Camión XL

- Planta de escenario: 14x10 metros
- Altura suelo a plancha: de 1,20 a 2 metros
- Altura plancha a techo: de 2,40 a 8,50 metros
- Carga soportada total: 9.000 kg
- Carga puntual en soportes para P.A.: 1.000 kg
- Velocidad máxima de viento soportada: 80 km/h
- 2 camerinos de 2x1 a ambos lados del escenario.
- Acceso a rampa y escalera
- Bodega
- Capacidad de carga interior = 40 metros cúbicos
       Tiempo de montaje = 3 horas
       Operarios necesarios = 2 pax.
       Generador autónomo para apertura incluido.


Camión L

- Planta de escenario: 12x8 metros
- Altura suelo a plancha: 1,20 a 2 metros
- Altura plancha a techo: 2,40 a 8,5 metros
- Carga soportada total: 5.000 Kg
- Carga puntual en soportes para P.A.: 1.000 kg – Grúas
- Velocidad máxima de viento soportada: 80 km/h
- Acceso a rampa y escalera
- Bodega
- Capacidad de carga interior = 40 metros cúbicos
       Tiempo de montaje: 1 hora y 30 minutos
       Operarios necesarios = 2 pax.

EN RUTA

Se han acometido grandes proyectos como el realizado por Warner Music – Newiscom durante 2010 y 2011. Se trataba de instalar un gran escenario que pudiera acoger varias actuaciones de importantes artistas nacionales en espacios singulares de las principales ciudades españolas. Este tipo de localizaciones impedía la ocupación del espacio por demasiado tiempo y a su vez requería un importante despliegue técnico de iluminación y sonido.

El escenario se puso en funcionamiento en menos de 4 horas, pudiendo así ocupar espacios tan significativos como la Gran Vía y la Plaza de España de Madrid, el Paseo de la Alameda y la Ciudad de las Artes y las Ciencias de Valencia, la Plaza de España de Sevilla o la Plaza de Arriaga de Bilbao.
Entre los artistas que pasaron por este escenario podemos destacar a Melendi, Efecto Mariposa, Taxi, Jarabe de Palo, Nada que Decir y el Sueño de Morfeo.

SEAT fue el patrocinador oficial de estos eventos.

CAMION ESCENARIO 2 CAMION ESCENARIO 3 CAMION ESCENARIO 4 CAMION ESCENARIO 5

CAMION ESCENARIO 7 CAMION ESCENARIO 8 CAMION ESCENARIO 9 CAMION ESCENARIO 10

CAMION ESCENARIO 6

CAMION ESCENARIO 1

Presets
BG Color
BG Patterns
Accent Color
Apply